岐阜県の新たな自治体行政ネットワーク構築にワイヤレスLANソリューションを採用、暗号化やステルス機能も追加(Aruba)
アルバネットワークス(Aruba)は4日、岐阜県が新たな自治体行政ネットワーク構築にあたり、同社のワイヤレスLANソリューションを導入したことを発表した。
製品・サービス・業界動向
業界動向
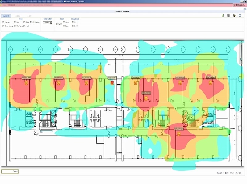
ネットワンシステムズが新通信インフラ計画の設計・構築・運用管理を請け負い、6月よりアルバのワイヤレスLANソリューションを本格稼働させた。冗長化された400台規模のアクセスポイント(AP)と管理・可視化ツールを、県庁および総合庁舎を含む県関連施設およそ50拠点に展開している。
現在、約150台のアルバ製AP「IAP-105」が県庁に、240台の仮想コントローラ内蔵の「Aruba1AP105」が総合庁舎を含む約50か所の県関連施設に配備され、冗長化されている。無線状況やデバイス・アプリケーションのパフォーマンス等のデータは、Aruba AirWaveにより可視化され、電波強度の遠隔調整などを含め、一元的に運用管理可能となっている。
またセキュリティ面では、従来の端末認証を継続しつつ、認証先の制御も含めて1つのAPで複数のSSIDをもたせたり、新たに暗号化やステルス機能が追加されたという。
岐阜県、行政ネットワーク構築にワイヤレスLANソリューション
《冨岡晶@RBB TODAY》
関連記事
この記事の写真
/
関連リンク
アクセスランキング
-
アドバンテストのネットワークに不正アクセス、ランサムウェア展開可能性
-
L2 スイッチでゼロトラストを実現、「セキュリティ予算」でなく「ネットワーク機器予算」で導入 ~ パイオリンクが語る超現実解PR
-
ポーランド軍施設に中国製車両立入禁止/ドイツ鉄道 DDoS 攻撃で障害 ほか [Scan PREMIUM Monthly Executive Summary 2026年2月度]
-
誤操作の発覚を恐れて委託先社員がログから記録を削除・変更したことが原因 ~ JAL「手荷物当日配送サービス」システム障害
-
KAGOYA CLOUD VPS 一部サーバでの障害、ブラジルの IP アドレスからの攻撃的なアクセスが原因

